
AIM HIGH. A simple thought, simply put. But you may wonder what it means here, especially when we are featuring a ‘low-rise’ housing development.
altius means ‘higher’ with a combination of an attitude that is simple and luxury that is basic, altius-I is for those whose thinking is simple with not just forward but an upward vision. From us these specifications are basic and high-end just as cliched as it may sound. But luxury with innate simplicity is high-end. It is simple and classy with the right attitude.
Yes AIM HIGH – make it happen.
Explore and flourish at altius-I.
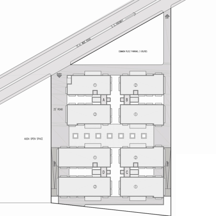
altius-I is a low rise housing development with just 24 units, offering a mix of 3 & 4 BHK apartments in various combinations within an open and a spacious plan setting. With high-end specifications like marble flooring, premium quality fittings and finishes, altius-I is only going to be for the discerning few who appreciate affordable quality. With today’s necessary indulgences of a gymnasium, modular kitchen, hi-tech security system, energy saving solutions, adequate parking and much more, altius-I is where your search for an exclusive luxury home ends.
At Synthesis our connection with nature is well established, hence one can be rest assured that landscaping is an important part of the scheme. Well manicured green spaces using native plants and sprinkler system to ensure maximum greenery with minimal use of water and maintenance.
Simply through, luxury is a by-product when you choose to live at altius-I located at Thaltej, one of the most prestigious and sought after address in Ahmedabad, and just a 2 minutes drive from S G Highway, it is ideally located within close proximity to public utilities and facilities such as schools, medical institutions, hotels, clubs, multiplexes, malls and other infrastructure.
altius-I is the ideal choice for a home that will give you immeasurable happiness, comfort and seamless joy in a luxury setting.