
and we are not saying ‘Luxury’ but we are saying a lot of other things that spell luxury because for us, all these have still come from simple and basic thinking.
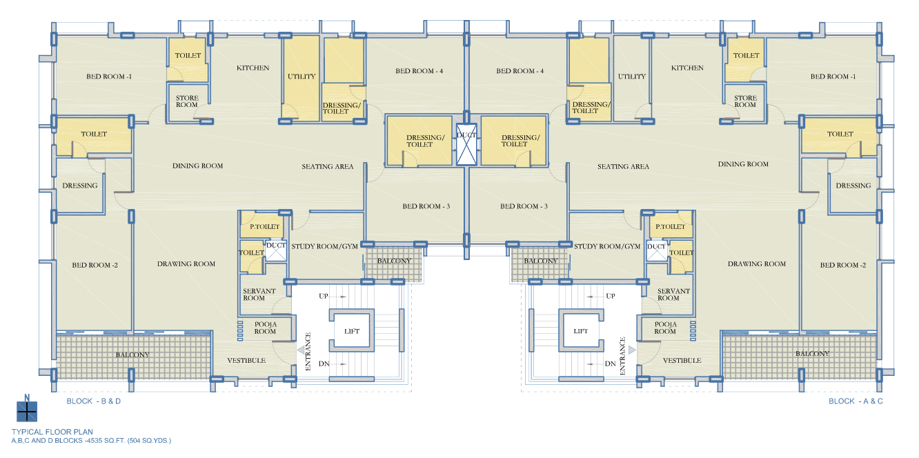
For us, ONE FLAT PER FLOOR simply meant ‘privacy and exclusivity’ but if privacy is luxury, yes altius II is luxurious.
For us, providing that ½ other bedroom simply came from an understanding from many homes are incomplete, without a personal study space but if an attached work space is luxury, yes altius is luxurious.
For us, 4 car parks per flat or 4 ½ BHK simply means that we know that most members of a family have a car to themselves but if adequate parking space per apartment is luxury, yes altius II is luxurious.
Above all, altius II, covers up to ‘AIMING HIGHER’ and delivers a product, that is a result of simple thinking and high exacting standards Altius II is an offering that spells class and luxury with an understated elegance.